Ugrás a kezdőoldalra Ugrás a tartalomhoz Ugrás a menüre
2025. december 6. Miklós
Veszprém
7°C
2025. december 6. Miklós
Veszprém
7°C

Az új veszprémi Egészségház minden igényt kielégít majd

2017. szeptember 6. 4:30
Januárban kezdhetik meg a praktizálást Veszprém legújabb háziorvosi rendelőjében. A Kabay utcai épületbe háziorvosok és védőnők költöznek, ahol kisgyermekesek és idősek ellátását egyaránt biztosítják majd - egy új klubot is elindítanak.

A Vehir új cikksorozatában a Veszprémet érintő fejlesztésekről olvashatnak részletesebben. A sorozat harmadik részében a Kabay utcában építendő Egészségházról írunk, melyhez ismét Lamos Péter, a Polgármesteri Hivatal Városfejlesztési Iroda vezetője nyújtott segítséget.

A témával kapcsolatos korábbi írásaink itt és itt olvashatók.

A Kabay utcában egy teljes mértékben akadálymentesített, jól megközelíthető komplexumot kezdtek el építeni júliusban. Ha az Egészségháznak nevezett épület elkészül, 3 új orvosi rendelőnek és 2 védőnői tanácsadónak ad majd helyet.

Az önkormányzat háziorvosai korábban nem messze, az Ádám Iván utcában praktizáltak, ám azt az épületet a város annak rossz műszaki állapota miatt értékesítette (gazdaságosan nem volt felújítható), helyén pedig egy új szolgáltatóházat építettek (ma itt egy mobilszolgáltató és egy pékség is működik). Az új épületbe való beköltözésig az itt dolgozó orvosok ideiglenesen a Komakút téri „SZTK”-ban rendelnek.

A beruházás az unió Területfejlesztési Operatív Program (TOP) fejlesztésének köszönhetően valósul meg. A projekt összköltsége bruttó 176 millió forint, melyhez a pályázatban elérhető forráshoz az önkormányzatnak önrészt kellett biztosítania.

Az Egészségházat Boros Zsombor építésztervező és csapata álmodta meg, korábban a Jutasi úti focipálya öltözőjét is ők tervezték, de részt vettek a Veszprém Aréna tervezési munkálataiban is. A kivitelezést a Min-Tech Kft. bonyolítja le.

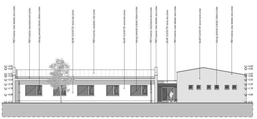
Lamos Péter a műszaki adatokról elmondta, hogy egy „L” alaprajzú, földszintes, 300 négyzetméter alapterületű, 17x 33 méteres befoglaló méretű épületről van szó, külön bejárattal a háziorvosoknak, és külön a védőnőknek (a szeparációra az ÁNTSZ előírásai miatt volt szükség). Az épület kialakítása teljeskörű, komplex akadálymentesítéssel történik, melyhez 10 parkolót is építenek – ezek közül 1 db mozgáskorlátozottak számára lesz kialakítva.

A környezet gazdagításának érdekében kerttervet is készíttettek, melynek köszönhetően fákat és növényeket is ültetnek.

„Megújuló energiaforrást nem tudtunk az épületbe tervezni, ezért nem AA+-os a ház, de ezen kívül a legszigorúbb energetikai követelményeknek felel meg. Viszonylag tehát olcsón lehet majd üzemeltetni”- fűzte hozzá a Városfejlesztési Iroda vezetője.

Hogy áll most a projekt?

„A projekt ütemterve szerint szeretnénk, ha novemberre elérnénk azt az állapotot, hogy el tudjuk indítani a használatbavételi eljárást, hogy decemberre az orvosok már be tudjanak költözni. Így januártól már az orvosok és a védőnők is ott tudnának praktizálni.

Az építkezést júliusban kezdték megAz építkezést júliusban kezdték meg

Az új Egészségház komplex szolgáltatásai révén mind az idősek, mind a kisgyermekes családok életében minőségi javulást fog eredményezni. Az új helyszínen is megmarad a 3 havonta tartott kiscsoportos babamasszázs-oktatás, illetve a nagy igényre való tekintettel tervezetten baba-mama klub indul.

Az Egészségházba dr. Gergelyi Ákos, dr. Kisvarga Magdolna és dr. Sinka László háziorvos, valamint Barabásné Fehér Krisztina és Szalainé Domján Réka védőnő költözik majd be.

Ge. Á.
további cikkek
Népegészségügyi központ: terjed a hepatitis A vírusa közélet Népegészségügyi központ: terjed a hepatitis A vírusa Továbbra is terjed a hepatitis A vírusa, a kézmosás a legjobb megelőzés - írta a Nemzeti Népegészségügyi és Gyógyszerészeti Központ (NNGYK) az MTI-hez pénteken eljuttatott közleményében. 2025. november 21. 14:49 Takács Péter: mostantól évente húszmilliárd forint többletfinanszírozást biztosítanak képalkotó diagnosztikai vizsgálatokra közélet Takács Péter: mostantól évente húszmilliárd forint többletfinanszírozást biztosítanak képalkotó diagnosztikai vizsgálatokra Mostantól évente beépülő jelleggel húszmilliárd forint többletfinanszírozást biztosít a kormány képalkotódiagnosztikai, ultrahang, CT és MR vizsgálatokra - jelentette be a Belügyminisztérium egészségügyi államtitkára szerdán. 2025. november 19. 17:30 ,,Otthon sem mindegy, mire lép az ember" életmód ,,Otthon sem mindegy, mire lép az ember" A veszprémi gyógyászati bolt, amely ma már Budapesttől Győrig fogad pácienseket, egészen más hangulatú hely, mint amit az ember az egészségügyi ellátórendszer szélén megszokott. Belépve nem steril, hűvös kiszolgálás, hanem egy család fogadja az embert – Péller Judit, fia, Császár Péter és a felesége Császár-Németh Petra, –, akik húsz éve építik közösen azt a vállalkozást, amely egy apró üzletből mára az ország egyik legismertebb lábdiagnosztikai pontjává nőtte ki magát. 2025. november 27. 10:30

A következő oldal tartalma a kiskorúakra káros lehet.

Ha korlátozná a korhatáros tartalmak elérését gépén, használjon szűrőprogramot!

Az oldal tartalma az Mttv. által rögzített besorolás szerint V. vagy VI. kategóriába tartozik.